Kreitschmann - Architektur und Bauleitung, Dortmund
   1 
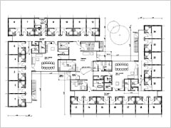
  Grundriss Erdgeschoss